RẠCH VẸM RESORT

RẠCH VẸM RESORT

Ngày đăng: 11/09/2025 11:52 AM

 

CÔNG TRÌNH: KHU NGHỈ DƯỠNG RẠCH VẸM (RACH VEM RESORT)

Chủ đầu tư: Hải An Đảo Ngọc Corporation

Địa điểm: Rạch Vẹm, Phú Quốc, Tỉnh Kiên Giang

Quy mô dự án: Diện tích khu đất 44,48ha; Tổng diện tích xây dựng 78480m2; Mật độ xây dựng là 10,63%

 

Ý TƯỞNG THIẾT KẾ QUY HOẠCH

 

THIẾT KẾ QUY HOẠCH KHÔNG GIAN CẢNH QUAN KIẾN TRÚC

 

 

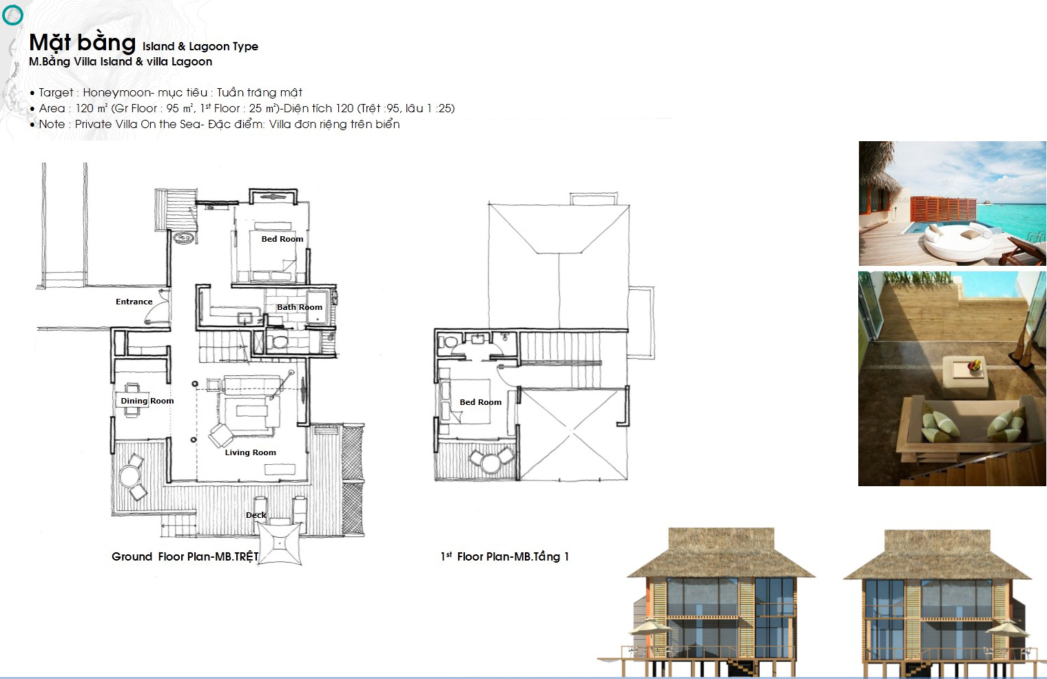
 THIẾT KẾ MẶT BẰNG CÁC CÔNG TRÌNH