NHÀ Ở BIỆT THỰ KHU DÂN CƯ KHANG ĐIỀN
Chủ đầu tư: Ông/bà Nguyễn Văn Hồng
Địa điểm: KDC Khang Điền, Phường Phước Long, Tp.HCM
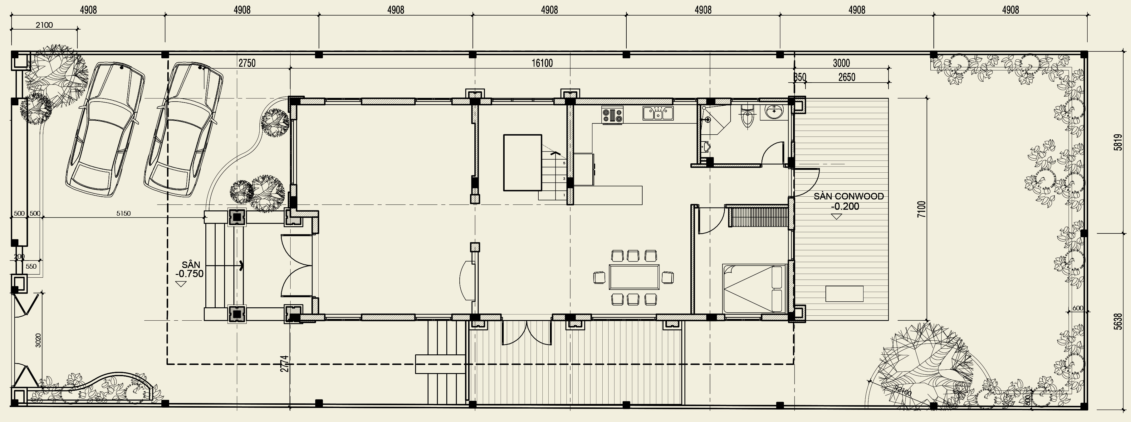
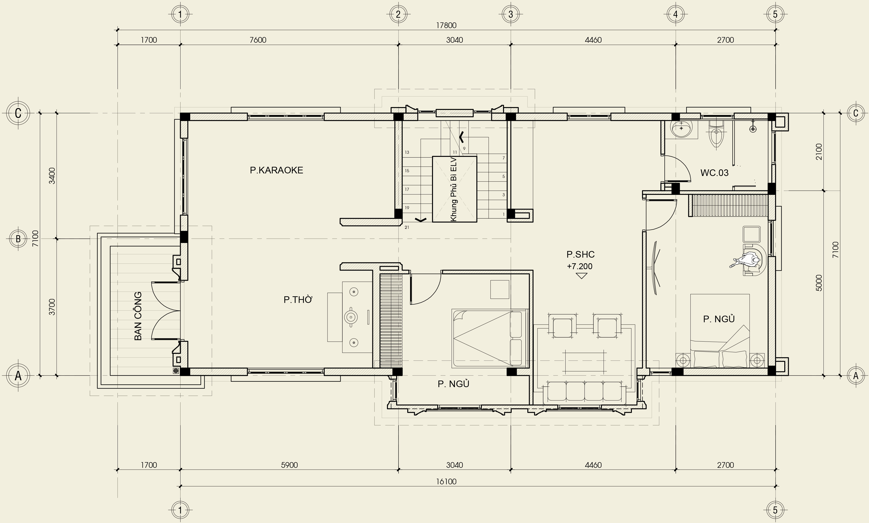
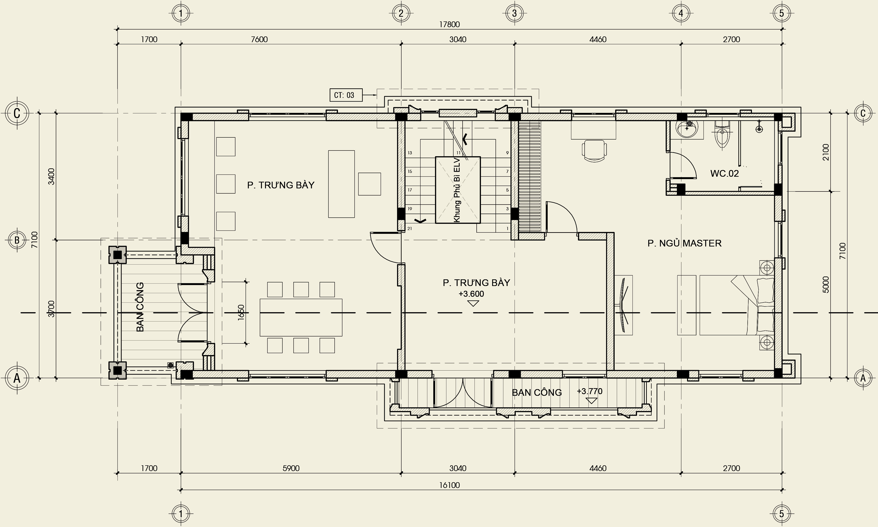
Quy mô dự án: Khuôn viên khu đất 11,5m x 34,5m; khuôn viên xây dựng là 7,1m x 16,1m; công trình cao 1 trệt 2 lầu và tầng áp mái
Được xây dựng tại khu dân cư cao cấp Khang Điền, ngôi biệt thự nổi bật với vẻ đẹp sang trọng và bề thế của phong cách kiến trúc Tân Cổ Điển. Công trình gây ấn tượng mạnh mẽ với sảnh chính cao ráo, được nâng đỡ bởi cặp cột ốp đá cẩm thạch vững chãi, mang lại cảm giác quyền quý và đẳng cấp ngay từ cái nhìn đầu tiên.
THIẾT KẾ MẶT ĐỨNG CÔNG TRÌNH
Các bản vẽ mặt đứng thể hiện rõ sự đối xứng, hài hòa trong từng đường nét kiến trúc. Hệ thống cửa sổ vòm và ban công với lan can sắt nghệ thuật được sắp đặt một cách tinh tế, kết hợp với các mảng tường ốp đá và phào chỉ nhẹ nhàng, tạo nên một tổng thể kiến trúc sang trọng, tinh xảo và trường tồn với thời gian.
THIẾT KẾ MẶT BẰNG CÔNG TRÌNH
Không gian tầng trệt được thiết kế mở, nối liền phòng khách, phòng ăn và bếp, tạo nên một khu vực sinh hoạt chung rộng rãi và thoáng đãng. Khoảng sân vườn phía trước và sau nhà mang ánh sáng tự nhiên và không khí trong lành vào từng góc nhỏ.
Lầu 1 là không gian riêng tư và thư giãn, bao gồm phòng ngủ Master sang trọng và một phòng trưng bày lớn, nơi gia chủ có thể thể hiện bộ sưu tập hoặc những kỷ vật quý giá của gia đình.
Lầu 2 được bố trí đa dạng công năng với phòng thờ trang nghiêm, các phòng ngủ tiện nghi và đặc biệt là một phòng karaoke hiện đại, đáp ứng hoàn hảo nhu cầu giải trí và nghỉ ngơi của mọi thành viên.
THIẾT KẾ NỘI THẤT PHÒNG KHÁCH
Phòng khách là sự hòa quyện đỉnh cao của nghệ thuật nội thất cổ điển. Bộ sofa gỗ chạm khắc tinh xảo, đèn chùm pha lê lộng lẫy và các chi tiết mạ vàng tinh tế cùng tạo nên một không gian tiếp khách xa hoa, thể hiện rõ vị thế của gia chủ.
THIẾT KẾ NỘI THẤT PHÒNG ĂN VÀ BẾP
Không gian bếp và phòng ăn được thiết kế liền mạch nhưng vẫn có sự phân chia khéo léo nhờ quầy bar mini. Hệ tủ bếp gỗ đồng bộ, bàn ăn sang trọng và ánh sáng ấm cúng mang lại những bữa cơm gia đình trọn vẹn và đáng nhớ.
Dự án Nhà Ở Biệt Thự Khu Dân Cư Khang Điền là một tác phẩm tiêu biểu, thể hiện rõ năng lực của Kiến Trúc Xanh VN trong lĩnh vực thiết kế nhà ở cao cấp, đặc biệt là phong cách Tân Cổ Điển đòi hỏi sự tinh xảo và am hiểu sâu sắc. Từ đường nét kiến trúc bề thế bên ngoài đến từng chi tiết nội thất sang trọng bên trong, tất cả đều được chúng tôi chăm chút để tạo nên một không gian sống hoàn hảo, vượt thời gian.
Thành công của dự án này cũng chính là lời khẳng định cho chuyên môn của chúng tôi trong việc hiện thực hóa những yêu cầu khắt khe nhất về một tổ ấm đẳng cấp. Mỗi công trình thiết kế nhà ở do Kiến Trúc Xanh VN thực hiện không chỉ là một ngôi nhà, mà còn là một di sản kiến trúc mang đậm dấu ấn cá nhân của gia chủ.
Nếu bạn yêu thích vẻ đẹp sang trọng, quyền quý của dự án Biệt Thự Khang Điền và mong muốn kiến tạo một không gian sống tương xứng với vị thế của mình, hãy liên hệ ngay với chúng tôi để được tư vấn và bắt đầu hành trình kiến tạo ngôi nhà trong mơ của bạn.
					
					
					
						
						
						
							.jpg)
.jpg)
.jpg)
.jpg)
.jpg)
.jpg)
.jpg)
.jpg)
.jpg)
.jpg)
.jpg)
.jpg)
.jpg)